• Home
  • Selected Projects
  • About
  • Contact
Menu

Leigh Snow Architects

  • Home
  • Selected Projects
  • About
  • Contact

North Laguna

New 2,500 Square foot residence in the “tree streets” of Laguna Beach on a small lot with very large trees. The project proposes a modern beach cottage of modest size, creating indoor/outdoor spaces that flow into the landscape. Planning, Design, Architecture and Interiors.

RX1 hawthorne.jpg
309 HAWTHORNE entry copy.jpg
RXC cypress.jpg
RXC northelev.jpg

Upper Gainsborough

New, 3600 SF single family residence and 850 SF Accessory Dwelling Unit in the Diamond Crestview Specific Plan of Laguna Beach.

The incredibly steep topography, while challenging, created opportunities for spectacular coastal views and unique architecture. A continuous surface folds its way to the top of the site, creating green roofs and decks with large overhangs around framed views. The elevator and central stair spine provide vertical access to the three levels of living space. Planning, Architecture, and Interior Design Services..

front all AM copy.jpg
front sideways AM copy.jpg
greatroomside.jpg
kitchensunsetout.jpg
garage.jpg
stair detail.jpg
frontdetail.jpg
framed view.jpg
detail1.jpg
kitchen view out all.jpg
kitchen.jpg
kitchendtl2.jpg
kitchendtl.jpg
servicekitchen.jpg
diningbarviewout.jpg
diningbar.jpg
powder 12.00.44 PM copy.jpg
stairskylight1.jpg
masterbrbathall lighter.jpg
masterdayout.jpg
mbathdtl.jpg
bedwall.jpg
masterbathdtlfire.jpg
desktop.jpg
kidsbath.jpg
masterdeck1.jpg
masterdeckout.jpg
masterbedviewdusk.jpg
mblevel view deck.jpg
Screenshot 2025-06-03 at 8.27.26 AM copy.jpg
above.jpg
night aerail AM copy.jpg

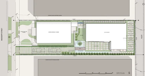
Mississippi Street

Renovation of an existing historic cottage and the addition of a second dwelling unit on the site for a growing multigenerational family. New residence San Diego. Planning, Architecture and Interiors.

4639 STREET VIEW.jpg
4639 M model 082022 R CY copy.jpg
SITE PLAN copy.jpg
4639 M model 082022 R LR copy.jpg
4639 M model 082022 MBR1.jpg
4639 M model 082022 R roofX copy.jpg
exploded axonometric copy.jpg

Mystic View

4,400 SF custom residence on the edge of a hill overlooking the town, ocean and canyon. Conceived to integrate with the hillside contours, the project proposes a high tech living machine in a garden on the hill. The flexible, open floor plan and blending of interior and exterior spaces create a range of program for a growing family. Photovoltaic energy production, rainwater collection, integrated gardens, deep set overhangs, sliding sun screens, and trombe walls are some of the elements that will contribute to the long term sustainable performance of the building. New Residence in Laguna Beach. Planning, Architecture and Interiors.

2019_0412 MYSTIC VIEW pool deck.jpg
IMG_1074.JPG
2020_0301 Mystic View r front.jpg
2019_0912 MYSTIC VIEW back corner.jpg
2018_0602 Mystic View LIVINGROOM .jpg

Monterey

New 6,300 Square Foot custom residence and 6 car garage overlooking Monterey Bay and Valley.

courtyard entry copy.jpg
pool side elevation copy.jpg
1 copy.jpg
entry main house copy.jpg
Garage 1 copy.jpg
Pool viewback copy.jpg

Lemon Heights

New 7,000 SF Single Family Residence in historic Lemon Heights. The pool, jacuzzi and reflecting pond bisect the building, which has an open, interior courtyard entry. The water element and courtyards act as a passive cooling element in the hot summer months, significantly reducing power demand. A variety of interior and exterior spaces capitalize on views and create intimate gathering areas for a multi-generational family. The building is sited to maximize panoramic views, minimize grading/foundation systems and in hope that rolling hills of orchards can be reintroduced to the estate. Planning, Architecture and Interior Design.

9e2316e9e93cb4c0be6e9d34ee66ad0d.jpg
Plantero SD LS image only.png
plantero gatex 2.jpg
plantero DD walkup.jpg
plantero DD entry.jpg
plantero DD Living Room 08282020.jpg
Plantero 08012020 TV ROOM.jpg
Screenshot_17.jpg
210515_Plantero_Schematic_LS image only.jpg

Diamond II

New 3,700 SF custom residence in Laguna Beach. Planning, Architecture and Interior Design Services.

796 Gains DD side view crop1.jpg
796 Gains DD 009012022 CYS X copy.jpg
796 Gains DD 009012022 CYS X2 copy.jpg
796 Gains DD 009012022 kitchen copy.jpg
796 Gains DD 082022 master.jpg

Coronado Drive

New 4,600 Single Family Home on Mystic Hill in Laguna Beach. Architecture and Interior design services.

Screenshot 2024-06-17 at 12.10.07 PM.png
Screenshot 2023-05-18 at 12.15.54 PM.png
Screenshot 2024-06-17 at 12.10.53 PM.png
Screenshot 2024-06-17 at 12.11.49 PM.png
Screenshot 2023-05-18 at 12.10.19 PM.png
Screenshot 2024-06-17 at 12.11.11 PM.png
Screenshot 2023-05-18 at 12.11.02 PM.png
side view x1cln.jpg
Screenshot 2024-06-17 at 12.14.47 PM.png

Virginia Way

Exterior renovation and addition to an existing cottage in South Laguna. Remodel Planning, Architecture and Interior Design Services.

IMG_1316.jpg
front elev iso lines.jpg
entry copy.jpg
LR out copy.jpg
great room copy.jpg
GARAGE ELEV.jpg
COTTAGE.jpg

Diamond 1

New, 2,600 sf custom residence on a very steep and tight lot, with complex zoning requirements. The design capitalizes on incredible north coast views, allows for abundant natural lighting while at the same time creates privacy from very close neighbors. The use of passive cooling, photovoltaic panels and rainwater collection all contribute to the sustainable nature of the project. Planning, Architecture and Interior Design Services.

820 front composite.jpg
820 DD DR 072023 street v3R copy.jpg
SectionperspectiveAIAg-01 2.06.56 PM.jpg
820 SD11 AIAOC interior LR.jpg
820 SD11 AIAOC interior MASTER .jpg

Aster

New, 2,000 sf cottage and sound studio in the tree streets of Laguna Beach. Planning and Architecture.

434 Aster 0920 R1.jpg
434 Aster 0920 R front door.jpg
434 Aster 0920 R axo.jpg

Virginia Park

Renovation to an existing 3,600 SF Residence in Laguna Beach.

Project Experience as Senior Project Designer for Horst Architects.

ISybr8dxzp6jkr1000000000.jpg
IS6itkv34yegkr1000000000.jpg
IS6eqjpu0waulr1000000000.jpg

Hillside A.D.U.

New Accessory Dwelling Unit (ADU) with a rooftop parking space. The design creates a private retreat on a steep, narrow lot with great views of the coast. Planning, Architecture and Interior Design Services.

adu site.jpg
ADU1 copy.jpg

Beverly Street A.D.U.

Conversion of existing garage into two level ADU with new carport and deck. Planning, Architecture and Interior Design Services.

ENTRY copy.jpg
ALLEY B copy.jpg
CORNER copy.jpg
UPSTAIRS copy.jpg
DECK copy.jpg

Summit

New, 1,800 SF mountain cabin on a small lot on Summit Mountain. Planning and Architecture Services.

summit site photo.jpg
summit rear elev persp.jpg
summit rend test 7.jpg
20powder-600-520x295.jpg

Malibu Road

Complete renovation to an existing 5,500 SF house on the sand in Malibu.

Project Experience as Project Architect for Horst Architects.

drone over ocean 2.jpg
Screenshot 2023-05-12 at 2.59.17 PM copy.jpg
malibu road from beach.jpg

Protohaus

Prototype multigenerational housing for a New Orleans community devastated by hurricanes and their after effects.

new orleans flooded.jpg
phousesitpics.png
PHBYARDXXV2.png
p81_New_Orleans_LA_1999-main.jpg
shotgun-house-plan.png
PHOVRFRONTXX.png
new-orleans-style-shotgun-house-plans-fresh-shotgun-style-historic-small-plan-homes-have-no-hallways-of-new-orleans-style-shotgun-house-plans.jpg
PHROOFPLANXX.png

Sunset

New mixed use development on Sunset Boulevard in Los Angeles.

SF Sunset s9 street perspective 12292014s.jpg
SF Sunset s9 elev persp 12292014s.jpg

Manzanita School

Integration of modular classroom units into an existing private ecological elementary school in Calabassas.

mza mod site 01162015 deck bak Xs.jpg
prev / next
Back to Architect Laguna Beach
RX1 hawthorne.jpg
4
North Laguna
front sideways AM copy.jpg
32
Upper Gainsborough
4639 STREET VIEW.jpg
7
Mississippi Street
5
Mystic View
courtyard entry copy.jpg
6
Monterey
plantero gatex 2.jpg
9
Lemon Heights
796 Gains DD side view crop1.jpg
5
Diamond II
Screenshot 2023-05-18 at 12.11.02 PM.png
9
Coronado Drive
7
Virginia Way
SectionperspectiveAIAg-01 2.06.56 PM.jpg
5
Diamond 1
3
Aster
3
Virgina Park
ADU1 copy.jpg
2
Hillside A.D.U.
5
Beverly Street A.D.U.
4
Summit
drone over ocean 2.jpg
3
Malibu Road
PHOVRFRONTXX.png
8
Protohaus
SF Sunset s9 street perspective 12292014s.jpg
2
Sunset
1
Manzanita School
AIA-Member_RED-BLACK_RGB-2 copy.jpg